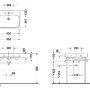
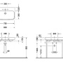
Характеристики
Стиль
—
современный стиль
Цвет
—
Белый
Серия
—
Happy D.2
Размер
—
50.5x80x17 см
Материал
—
фарфор
Цена по запросу
Под заказ
Наши менеджеры обязательно свяжутся с вами и уточнят условия заказа
Цена действительна только для интернет-магазина и может отличаться от цен в розничных магазинах
