Характеристики
Стиль
—
современный стиль
Цвет
—
хром, жасмин
Серия
—
Axia III 6S-F
Тип
?
Text
—
врезные
Слив-перелив
—
Нет
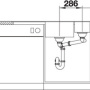
Размер
—
50x99x19 см
Все характеристики
Цена по запросу
Под заказ
Наши менеджеры обязательно свяжутся с вами и уточнят условия заказа
Цена действительна только для интернет-магазина и может отличаться от цен в розничных магазинах
