Характеристики
Цвет
—
белыйсиний
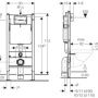
Серия
—
Duofix UP 100
Товары комплекта
—
[]
Размер
—
18x50x112 см
Материал
—
металл, пластик
Цена по запросу
Под заказ
Наши менеджеры обязательно свяжутся с вами и уточнят условия заказа
Цена действительна только для интернет-магазина и может отличаться от цен в розничных магазинах
