Характеристики
Цвет
—
черный, хром глянцевый
Серия
—
без коллекции
Товары комплекта
—
[]
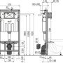
Размер
—
12.5x51x112 см
Материал
—
металл, пластик
Цена по запросу
Под заказ
Наши менеджеры обязательно свяжутся с вами и уточнят условия заказа
Цена действительна только для интернет-магазина и может отличаться от цен в розничных магазинах
