Характеристики
Цвет
—
Серый
Серия
—
без коллекции
Товары комплекта
—
[]
Размер
—
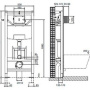
17x50x135 см
Материал
—
металл, пластик
Цена по запросу
Под заказ
Наши менеджеры обязательно свяжутся с вами и уточнят условия заказа
Цена действительна только для интернет-магазина и может отличаться от цен в розничных магазинах
